Beschreibung
Dieser ursprünglich im Jahr 1907 erbaute Hof vereint auf besondere Weise den Charme vergangener Zeiten mit den Annehmlichkeiten modernen Wohnens. Im Jahr 1993 wurde die Immobilie umfassend saniert und durch einen Anbau erweitert – so entstand ein Zuhause, das viel Platz, Behaglichkeit und vielseitige Nutzungsmöglichkeiten bietet.
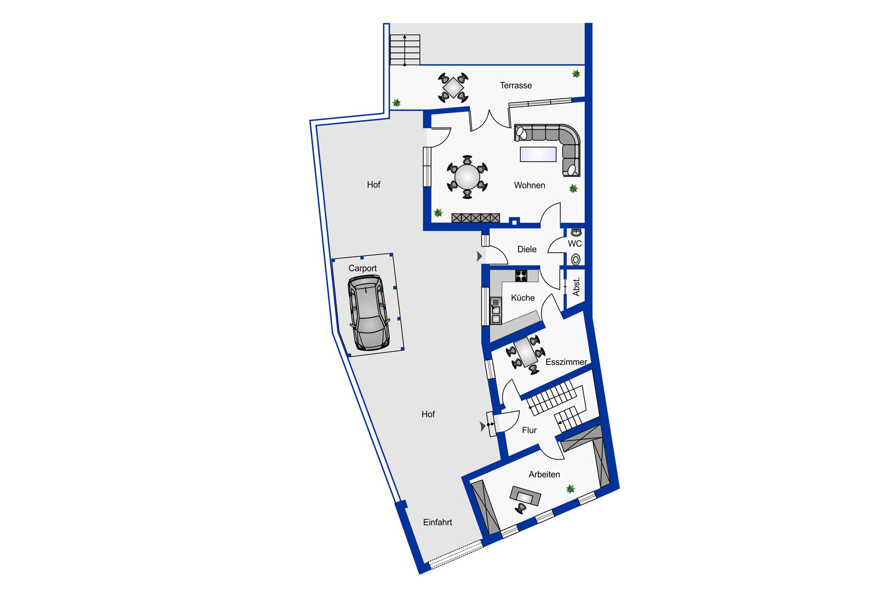
Bereits beim Betreten des Erdgeschosses empfängt Sie ein lichtdurchflutetes Wohn- und Esszimmer, das mit seinem gemütlichen Ambiente und dem direkten Zugang zur Terrasse zum Mittelpunkt des Familienlebens wird. Von hier aus genießen Sie den Blick in den liebevoll angelegten Garten. Eine separate Küche, ein zusätzliches Esszimmer sowie ein weiteres Zimmer, das sich ideal als Home-Office oder Gäste-/Kinderzimmer eignet, sorgen für flexible Gestaltungsmöglichkeiten. Ein Gäste-WC und ein praktischer Abstellraum ergänzen das Raumangebot.
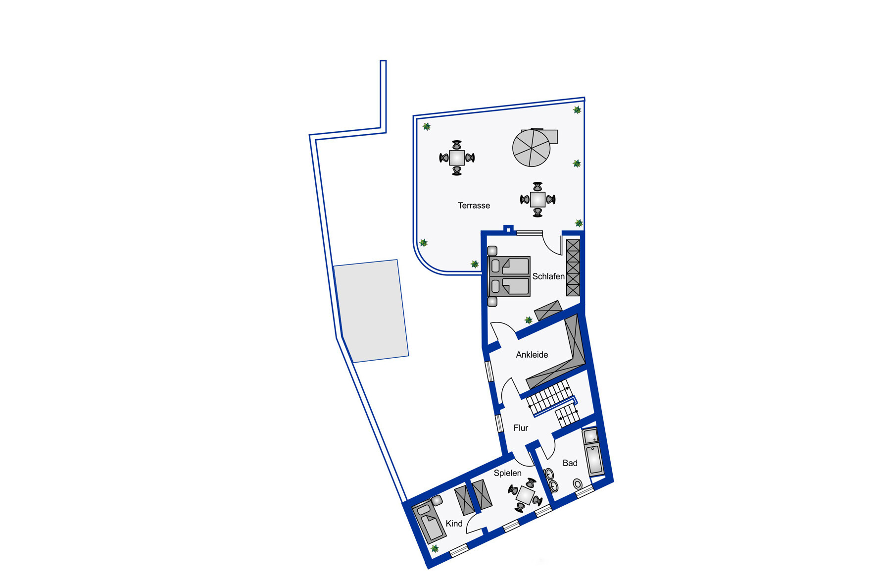
Im Obergeschoss erwarten Sie ein Schlafzimmer mit direktem Zugang zu einer großzügigen Dachterrasse, von der Sie einen traumhaften Blick ins Vorgebirge genießen. Ein separates Ankleidezimmer, zwei Kinderzimmer sowie ein modernes Badezimmer bieten genügend Platz für die ganze Familie. Das nicht ausgebaute Dachgeschoss dient aktuell als Speicher. Das Haus ist zudem teilweise unterkellert.
Für Privatsphäre und Sicherheit sorgt ein elektrisches Hof-Tor – ideal für Familien mit Kindern oder Hundebesitzer. Der Hofbereich bietet ein Carport, einen Fahrrad-Abstellschuppen und ausreichend Fläche, um bei Bedarf eine zusätzliche Terrasse zu gestalten – so haben Sie stets die Wahl zwischen Sonnen- und Schattenplätzen.
Dieser Hof ist ein Zuhause mit Seele – ein Ort, an dem Geschichte und Komfort Hand in Hand gehen und der Ihnen und Ihrer Familie Raum für Leben, Arbeiten und Genießen bietet.
Ausstattung
• Gasbrennwertheizung aus 2021, Warmwasserversorgung über Warmwasserspeicher
• Kaminofen im Wohnzimmer für behagliche Wärme
• teilweise Holzfenster (Doppelverglasung) aus 1993 und teilweise Kunststofffenster mit Holzdekor (Doppelverglasung) aus 2007, alle mit Rollläden
• Badezimmer und Gäste-WC 1993 erneuert, 2015 neue Dusche
• Einbauküche im Kaufpreis enthalten
• Das vorhandene Hoftor aus Holz wurde in 2023 durch ein elektrisches Sektionaltor mit Schlupftür ersetzt.
• Die Videosprechanlage wurde ebenfalls in 2023 eingebaut.
• Dach vermutlich in den 1980er-Jahren erneuert, 1993 gedämmt
Angaben zum Energieausweis:
Baujahr: 1907
Energieträger: Gas
Energieausweis-Typ: Bedarfsausweis
Energiekennwert: 307,7 kWh/(m²*a)
Energieeffizienzklasse: H
Lage
Der Hof liegt in zentraler Lage in Bornheim-Walberberg. Der Ortsteil Walberberg bietet eine sehr gute Infrastruktur und familienfreundliche Lage. In wenigen Minuten sind fußläufig Supermarkt (Edeka), Geldautomat, Apotheke, Bäcker, Schreibwarengeschäft mit Post, Gaststätte und einige Ärzte erreichbar.
Zwei Kindergärten und die Grundschule befinden sich im Ort und sind fußläufig erreichbar. Alle wichtigen weiterführenden Schulen befinden sich in Brühl und Bornheim-Zentrum und sind bequem mit der KVB-Linie 18 erreichbar.
Im Ort gibt es zwei Haltestellen der Bahnlinie 18 (Köln / Bonn). Die Autobahnanschlussstelle zur A553 befindet sich am Ortsrand. Die Städte Köln und Bonn sind mit dem PKW oder der Bahn in ca. 30 Minuten erreichbar.
Die Nähe zu Brühl lädt dazu ein, neben den Angeboten der Stadt Bornheim auch die Freizeitangebote bzw. Einkaufsmöglichkeiten der Stadt Brühl und das reichhaltige Kulturangebot wahrzunehmen (Kletterpark, Wasserski-Anlage, Schwimmbad, Seen mit Bademöglichkeiten, Brühler Schlösser, Phantasialand, Zoom-Kino, Max-Ernst-Museum etc.). Auch die Brühler Gastronomieszene wird immer vielfältiger.
Das nahe Naturschutzgebiet Kottenforst-Ville lädt zu ausgedehnten Spaziergängen und Radtouren ein. Gerade auch für Sportler und Hundebesitzer eine optimale Lage.
Sonstiges
Befeuerung/Energieträger: Gas
Baujahr: 1907
Heizungsart: Zentralheizung
Energieausweistyp: Bedarfsausweis
Energiekennwert: 307,7 kWh/(m²*a)
Energieeffizienzklasse: H
Finanzierung geklärt?
Videos mit Tipps zur Finanzierung und einen Finanzierungsrechner finden Sie unter https://www.wav-immo.de/finanzierung/
Neue Immobilienangebote finden Sie zunächst nur auf unserer Homepage, in unseren Schaufenstern und auf unserer Facebook-Seite. Abonnieren Sie unsere Facebook-Seite (https://www.facebook.com/WAV.Immobilien.Reuschenbach/) und erhalten Sie so neue Immobilienangebote vor dem Vermarktungsstart. In den Internetportalen finden Sie immer nur eine kleine Auswahl aus unserem Immobilienangebot.
Unser komplettes Angebot finden Sie auf unserer Homepage unter www.wav-immo.de. Registrieren Sie sich bei uns und Sie erhalten künftig aktuelle Angebote per Mail. Online unter https://www.wav-immo.de/immobilienangebote/suchauftrag/
Bei der Erstellung der Texte und der Bildbearbeitung kommt KI-Technologie zum Einsatz.